DH-1重合閘繼電器的技術數據及開孔尺寸-上海上繼科技有限公司
發表時間:2019-06-21 10:48 瀏覽次數:707 〖返回〗
一、DH-1重合閘繼電器的用途
DH-1型重合閘繼電器用于輸電線路上實現三相一次重合閘的控制回路中 。
二、DH-1重合閘繼電器的結構概述
該繼電器由一臺時間繼電器(DS-112C型,作為時間元件JS),一臺電碼繼電器(作為中間元件JZ),及電阻,電容元件組成。它們被固定在絕緣的安裝板上,安裝板又被固定在金屬的底座上,裝有金屬的外殼,它通過螺桿被固定在底座上,在外殼與底座之間輔有隔塵墊,保證密封,在金屬外殼上部鑲有玻璃,從外面可以檢查裝置的動作情況。
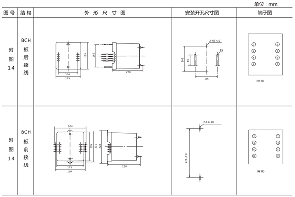
繼電器可以采用板前接線,也可以板后接線。
繼電器內部接線圖示圖1

三、DH-1重合閘繼電器的技術數據
1.繼電器的額定電壓為DCllOV, 220V。
2.繼電器的額定電流(中間元件電流繞組JZ(I)的額定保持電流)為0.25A; 0.5A; IA; 2A; 4A。
3.在額定電壓下,當環境溫度為20±5°C,相對濕度不大于70%時,電容器充電到中間元件動作所必需的電壓的時間(一次重合閘間隔時間)在15s-25s范圍內 。
4.在70%額定電壓下,當環境溫度為20±5°C,相對濕度不大于70%時,繼電器應保證可靠動作,此時電容器充電到使中間元件動作所必需的電壓的時間,允許延長到2min。
5.當中間元件電壓繞組沒有電壓,電流繞組流過額定電流時,銜鐵保持在吸合位置。
6.繼電器在額定電壓下中間元件的觸點JZl與JZ(I)串聯后,應保證能接通額定電流8倍(不大于8A)的電流歷時5s,此后在觸點上不應有熔化和粘接的痕跡。
7.在額定電壓下,中間元件電流繞組JZ(I)的功率消耗應不大于1.35W。
8.時間元件的延時調整范圍為0.25s~ 3.5s。
9 時間元件的線圈串聯附加電阻后應能長期經受110%額定電壓 。
10.介質強度:繼電器各電路對外露非帶電金屬部分之間應耐受電壓2kV,交流50Hz歷時lmin試驗而無擊穿或閃絡。
11.繼電器內各元件參數由表1給出

四、DH-1重合閘繼電器的開孔尺寸

上海上繼科技有限公司(專注電力保護繼電器生產廠家)銷售熱線:021-57233089 QQ:1932551438
{以上內容僅供參考,上海上繼科技有限公司有最終解釋權}
更多繼電器精彩文章——JJJ-1監視繼電器的參數及開孔尺寸
- 上一篇:DH-3重合閘裝置的參數及接線圖
- 下一篇:DCD-5A差動繼電器的原理及安裝尺寸





